所属分类:智慧油田
产品概述:
ACQD系列紧急切断阀(以下简称:紧急切断阀)是依据JB/T13885和GB/T12224设计、生产和检验的一种安全阀;该阀主要安装在天然气井口外输管线上,用于限制管线内介质压力处于安全压力范围内;也可用于防止现场发生火灾时,紧急切断气井外输管线。
ACQD系列紧急切断阀是我公司经过2年研发而成的智能紧急切断阀,具有完全自主知识产权,相关专利多达6项,其中发明专利2项。该阀具有超压、欠压和环境温度异常自动快速切断功能,切断响应时间≤1s;该阀不仅能手动开关,而且在较低的功耗下实现电动开关和远程控制开关。
为油气田提供智能化产品、服务和解决方案的国内头部企业。
400-005-8656
--自力式结构,不依赖外部电源,安全可靠
--灵敏度高、关阀时间短
--低功耗,工作电流≤3A,待机电流≤10mA
--阀体采用双阻断设计,密封性能优异
--智能化程度高,可实现远程开关阀操作,与智控阀联动操作等
--结构紧凑,集智能调压、紧急切断阀和流量计量功能为一体
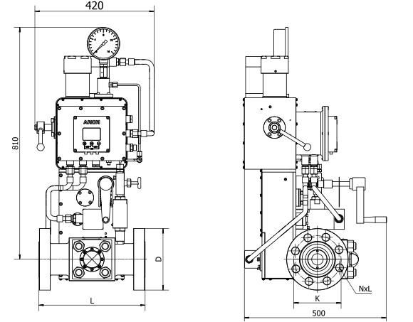
--外形尺寸
如图2所示,紧急切断阀执行机构部分,宽度500mm, 高度距离管线中心810mm,阀体长度如表1数据。

图2 结构尺寸图
表1 紧急切断阀结构长度
| 公称尺寸 | PN≤PN25.0MPa | PN42.0MPa |
| 结构长度L:单位mm | ||
| DN50 | 371 | 454 |
| DN65 | 422 | 540 |
| DN80 | 473 | 584 |
| DN100 | 549 | 683 |
| DN150 | 711 | 927 |
| DN200 | 841 | 1038 |
公称通径 DN50~DN200
公称压力 PN63~PN420
切断压力范围 (0.3-15)MPa
切断压力误差 (0.15~1.5)MPa
紧急关阀相应时间 (1~2)s
额定电压 (12~24)V
额定功率 60W
静置电流 ≤10mA
适用温度 (-29~121)℃
防爆标志 Ex db IIB T4 Gb
防护等级 IP65
通讯方式 RS485、标准MODBUS协议
