所属分类:流量系列
产品概述:
多参量孔板流量计ACF-1-KB结构简单,无可动部件、长期使用稳定可靠,精度高。标准化程度高,线性好,可不必进行实流标定。孔板流量计使用灵活方便;国内目前流量测量中应用广泛的仍然是差压式流量计,据有关资料的估计占流量仪表总用量的75%-85%之间。它在蒸汽锅炉、石油、化工、钢铁、电力、水利、造纸、制药、食品和化纤等行业中被广泛使用。
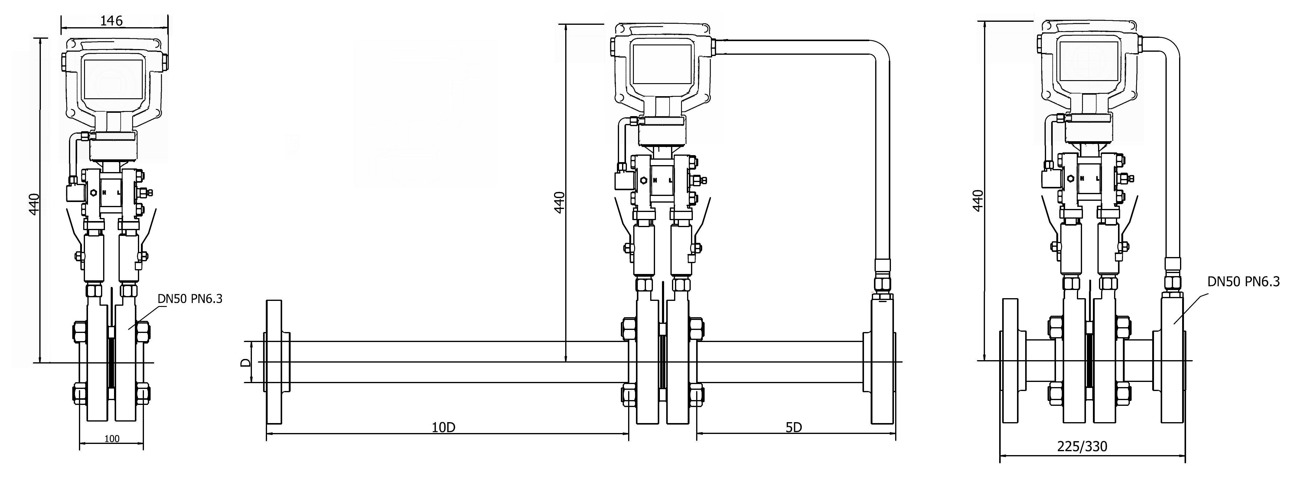
孔板流量计的安装要求:对直管段的要求一般是是前10D后5D,因此在选购孔板流量计时一定要根据流量计的现场工况情况来选择适合现场工况的流量计。
▍ 工作原理
充满管道的流体,当它们流经管道内的流量孔板时,流速将在流量孔板的节流处形成局部收缩,从而使流速加快,静压力降低,于是在标准孔板前后便产生了压力降或叫压差,介质流动的流量愈大,在流量孔板前后产生的压差也就愈大,所以可通过测量压差来测量流体流量的大小。这种测量方法是以流动连续性方程(质量守恒定律)和伯努利方程式(能量守恒定律)的原理为基础的。
为油气田提供智能化产品、服务和解决方案的国内头部企业。
400-005-8656
-结构简单、安全可靠、寿命长,适用于单井天然气、煤层气计量;
-方便更换孔板,可大范围调整测量量程,满足单井产能各阶段变化需要;
-无需实流标定,高精度,方便批量生产;
-耐高低温,耐高压,可测气体、液体、蒸汽,适用范围广;
-同时显示累计流量、瞬时流量、压力、温度;
-输出4通道(4~20)mA标准电流信号及RS485标准通讯接口;
外形尺寸
(单位:mm)
▍ 产品专利
实用新型专利证书
①ZL 2012 2 0299081.6 《一体化静压、差压检测装置》
②ZL 2011 2 0549792.X 《一种一体化多参量差压流量计》
③ZL 2013 2 0529448.3 《一种一体化多参量流量仪表表头》
外观设计专利证书
④ZL 2013 3 0412222.0 《仪表表头》
▍ 引用标准
本产品通过电磁兼容测试,标准引用:
GB/T 17626.2-2006 电磁兼容 试验和测量技术 静电放电抗扰度试验
GB/T 17626.3-2006 电磁兼容 试验和测量技术 射频电磁场辐射抗扰度试验
GB/T 17626.4-1998 电磁兼容 试验和测量技术 电快速瞬变脉冲群抗扰度试验
GB/T 17626.5-1999 电磁兼容 试验和测量技术 浪涌(冲击)抗扰度试验
GB/T 17626.8-2006 电磁兼容 试验和测量技术 工频磁场抗扰度试验
天然气压缩流量计算标准引用:
GB/T 21446-2008 用标准孔板流量计测量天然气流量
天然气压缩因子计算标准引用:
GB/T 17747.1-2011 天然气压缩因子的计算 第1部分:导论和指南
GB/T 17747.2-2011 天然气压缩因子的计算 第2部分:用摩尔组成进行计算
GB/T 17747.3-2011 天气然压缩因子的计算 第3部分:用物性值进行计算
GB/T 11062-2014 天然气 发热量、密度、相对密度和沃泊指数的计算方法
防爆认证相关标准引用:
GB 3836.1-2010 爆炸性环境 第1部分:设备 通用要求
GB 3836.2-2010 爆炸性环境 第2部分:由隔爆外壳“d” 保护的设备
其他认证与引用标准:
本公司通过ISO 19001:2008国际质量管理体系认证
本产品执行企业标准:Q/AC J03 02-2017 多参量流量变送器
本产品型式批准号:12F104-61
节流件设计计算标准引用:
GB/T 2624.1-2006 用安装在圆形截面管道中的差压装置测量满管流体流量 第1部分:一般原理和要求
GB/T 2624.2-2006 用安装在圆形载面管道中的差压装置测量满管流体流量第2部分:孔板
GB/T 2624.3-2006 用安装在圆形载面管道中的差压装置测量满管流体流量第3部分:喷嘴和文丘里喷嘴
GB/T 2624.4-2006用安装在圆形载面管道中的差压装置测量满管流体流量第4部:文丘里管
公称通径
DN20~DN1000
公称压力
(0~42)MPa
介质温度
(-50~700)℃
系统精度
0.5级、1级、1.5级、2.0级、3.0级
量程比
4 :1 或 10:1
直管段要求
前10D,后5D
连接方式
法兰夹持式,管道焊接式、一体嵌入式
环境温度
(-40~80)℃
供电方式
外供电源:(7~30)V直流,工作电流小于40mA
内置电池:3.6V工业锂电池,可连续工作2年
输出方式
a、RS485通讯接口,标准MODBUS协议
b、4通道(4~20)mA标准电流信号,精度0.1%FS
c、Hart
防爆等级
ExdIICT6 Gb
防护等级
IP68
产品选型
