所属分类:流量系列
产品概述:
ACF-1PHKB一体化智能平衡流量计是在孔板、喷嘴节流件上增加了平衡孔,极大地降低了涡流、振动和信号噪声,流场稳定性明显提高,使线性度和重复性精度得到很大提升,同时在小流量时能得到更好的测量效果,扩大了孔板、喷嘴流量计的测量范围。平衡孔的整流效果,缩短了孔板、喷嘴前后直管段的长度要求,从而降低了现场的安装要求,同时也减小了系统的永久压力损失。平衡流量计可测量液体、蒸汽、气体的流量,广泛应用于石油、化工、冶金、电力、轻工等行业。
▍ 工作原理
充满管道的流体流经与管道同轴的喷嘴时,流束将通过平衡喷嘴和平衡孔流出,从而使流速增加,静压降低,于是在喷嘴的前后产生了差压,流速越大,差压也越大,所以通过测量差压的大小来测量流经管道流量的大小。这种测量方法是以能量守恒定律和流动联系方程为基础,测量流体流量的大小。
为油气田提供智能化产品、服务和解决方案的国内头部企业。
400-005-8656
▍ 产品特点
-流量测量范围宽,量程比大于10:1;
-适合测量相对干净的介质,测量精度高,重复性好;
-圆弧形设计,耐磨性好,具有稳流功能,耐用性优于平衡孔板;
-直管段要求低,压损小,适合贸易计量,适合天然气站内计量;
-耐高低温,耐高压,可测气体、液体、蒸汽,适用范围广;
-同时显示累计流量、瞬时流量、压力、温度;
-输出4通道(4~20)mA标准电流信号及RS485标准通讯接口;
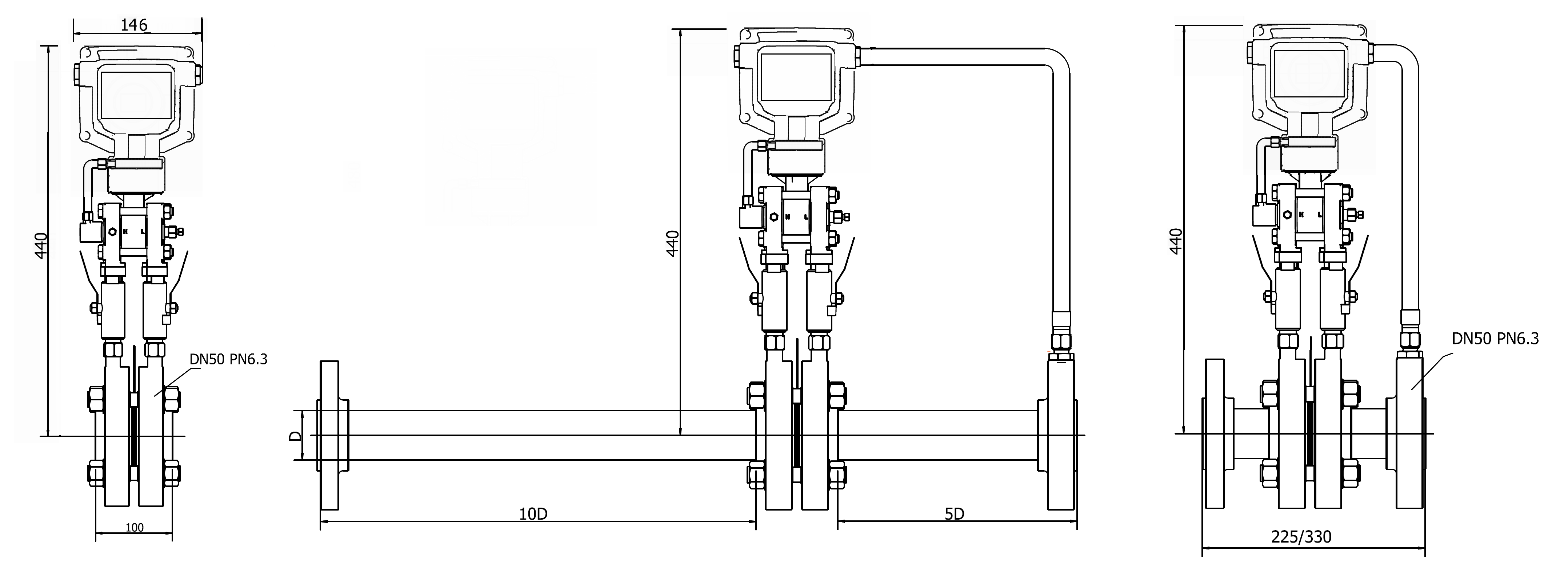
外形尺寸
(单位:mm)
产品选型
▍ 产品专利
实用新型专利证书
①ZL 2012 2 0299081.6 《一体化静压、差压检测装置》
②ZL 2011 2 0549792.X 《一种一体化多参量差压流量计》
③ZL 2013 2 0529448.3 《一种一体化多参量流量仪表表头》
外观设计专利证书
④ZL 2013 3 0412222.0 《仪表表头》
▍ 引用标准
本产品通过电磁兼容测试,标准引用:
GB/T 17626.2-2006 电磁兼容 试验和测量技术 静电放电抗扰度试验
GB/T 17626.3-2006 电磁兼容 试验和测量技术 射频电磁场辐射抗扰度试验
GB/T 17626.4-1998 电磁兼容 试验和测量技术 电快速瞬变脉冲群抗扰度试验
GB/T 17626.5-1999 电磁兼容 试验和测量技术 浪涌(冲击)抗扰度试验
GB/T 17626.8-2006 电磁兼容 试验和测量技术 工频磁场抗扰度试验
天然气压缩流量计算标准引用:
GB/T 21446-2008 用标准孔板流量计测量天然气流量
天然气压缩因子计算标准引用:
GB/T 17747.1-2011 天然气压缩因子的计算 第1部分:导论和指南
GB/T 17747.2-2011 天然气压缩因子的计算 第2部分:用摩尔组成进行计算
GB/T 17747.3-2011 天气然压缩因子的计算 第3部分:用物性值进行计算
GB/T 11062-2014 天然气 发热量、密度、相对密度和沃泊指数的计算方法
防爆认证相关标准引用:
GB 3836.1-2010 爆炸性环境 第1部分:设备 通用要求
GB 3836.2-2010 爆炸性环境 第2部分:由隔爆外壳“d” 保护的设备
其他认证与引用标准:
本公司通过ISO 19001:2008国际质量管理体系认证
本产品执行企业标准:Q/AC J03 02-2017 多参量流量变送器
本产品型式批准号:12F104-61
节流件设计计算标准引用:
GB/T 2624.1-2006 用安装在圆形截面管道中的差压装置测量满管流体流量 第1部分:一般原理和要求
GB/T 2624.2-2006 用安装在圆形载面管道中的差压装置测量满管流体流量第2部分:孔板
GB/T 2624.3-2006 用安装在圆形载面管道中的差压装置测量满管流体流量第3部分:喷嘴和文丘里喷嘴
GB/T 2624.4-2006用安装在圆形载面管道中的差压装置测量满管流体流量第4部:文丘里管
公称通径
DN20~DN1000
公称压力
(0~42)MPa
介质温度
(-50~700)℃
系统精度
0.5级、1级、1.5级、2.0级、3.0级
量程比
4:1 或 10:1
直管段要求
前3D,后2D
连接方式
法兰夹持式,管道焊接式、一体嵌入式
环境温度
(-40~80)℃
工作电源
外供电源:(7~30)V直流,工作电流小于40mA
内置电池:3.6V工业锂电池,可连续工作2年
输出方式
a、RS485通讯接口,标准MODBUS协议
b、4通道(4~20)mA标准电流信号,精度0.1%FS
c、Hart
防爆等级
ExdIICT6 Gb
防护等级
IP68
产品选型
